MIDTOWN

2 BEDROOM - 2.5 BATHROOM

PROJECT OVERVIEW

ARCHITECTURE

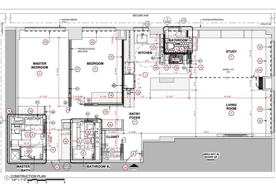
The programmatic challenge on this project was to create a convertible space in a newly combined, 2-bedroom, apartment that could transform the dining room into a guest bedroom. With the use of a folding partition and a novel kitchen layout, we were able to create a Guest room with an on-suite powder room that doubles as the common facility when the guest room is not in use.


INTERIOR DESIGN

The desired design concept for this project included modern lines and a monochromatic color palette. The challenge here was to achieve this look without making the space feel “cold”. The solution was to layer warmer hues of gray and add lots of textures and patterns in the tile and stone choices. In the end, these design choices created many visually interesting moments throughout the living spaces.

EXPLORE OUR INSPIRATION ON PINTEREST


OWNERS REPRESENTATION

One of the biggest challenges when renovating in an apartment building is coordinating with neighbors. In this project, accessing the waste pipe required entry to the unit below. The plan was simple: cut a 12 × 12 opening in their ceiling, extend the riser, then patch, plaster, and paint. However, when our clients asked for permission, the neighbors refused. With construction already underway, we needed a fast solution. Our team quickly reworked the layout—flipping the primary closet and bathroom and converting the entry closet into the second bathroom. It was an unexpected challenge, but creative problem-solving is exactly where our team thrives.

“3F Living created amazing designs and helped us manage the project every step of the way - from contractor selection to navigating the building’s requirements and making vendor and design decisions. As with any project, there were surprises along the way. 3F Living helped us navigate them with as little stress as possible.”

- Dow & Marc, Home Owners

View Testimonials

MIDTOWN GALLERY